CONCEPTION

Pour vous
Chez aménagement Paul Boisvert, nous concevons des plans d’aménagement paysager,
qui sont innovateurs et tendances, mais surtout à votre image. Notre équipe
saura vous proposer un
concept sur mesure selon vos besoins et vos goûts. Vous aimez certains styles
spécifiques, l’éventail de styles possibles saura vous satisfaire; contemporain,
champêtre, anglais, français, moderne, chic, épuré. Nous maîtrisons tous ces
styles et nous sommes en mesure de les développer à la perfection.
Il est important pour vous de savoir que les bâtiments existants sur les lieux
de votre projet d’aménagement paysager, dressent des lignes directrices, au
niveau du style et du concept. Nous devons en tenir compte pour les mettre en
valeur et bien ancrer votre résidence dans son environnement. Avec vos idées et
notre expertise, nous développerons un plan de votre projet qui vous ressemble.
Quels que soient vos projets d’aménagement extérieur, nous possédons l’expertise
et l’expérience pour les concevoir et les mener à terme avec professionnalisme,
esthétisme et fonctionnalité, afin de vous offrir le cadre de vie dont vous
rêvez.
Pour nous
Le plan est l’outil principal pour l’équipe d’ouvrier qui travaille à la
réalisation de votre projet.
Les trois éléments principaux à retenir de la conception à la réalisation de
votre projet sont;
• La gestion
• La planification des étapes
• Le délai de la réalisation des travaux
Ces éléments sont des outils essentiels pour les projets qui demandent
plusieurs étapes de réalisation. Cela permet de coordonner l’ensemble de la
réalisation au niveau de la fonctionnalité, de la symétrie des designs et
l’accessibilité. L’ensemble de ces éléments constitue une formule gagnante au
sein de notre entreprise pour mener à terme votre projet, à votre image et ce de
façon professionnelle. professionnelle.
L’importance
d’un plan en aménagement paysager
Le plan et le devis sont la base de tous les travaux et procédures sur chantier
que nous réalisons. Ces données précises sont pour l’équipe des outils de
réalisation qui permettront l’atteinte du résultat optimale que vous désirez
quant à votre projet. Cela vous permettra de visualiser votre projet sur papier
et d’en avoir une image d’ensemble avant même d’exécuter la moindre procédure de
chantier. Vous pourrez y voir les lignes directrices, le design, la symétrie du
concept. Cela vous permettra de vérifier si le tout répond à vos besoins et si
l’ensemble est bien adapté de façon fonctionnelle à vos idées. Vous saurez donc
exactement pourquoi vous investissez dans votre projet d’aménagement paysager.
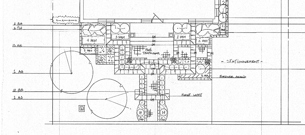
Plans et conceptions
Les plans - conceptuels, techniques, et de plantations - sont le fruit d’une
analyse approfondie de vos besoins et de vos désirs. Indispensables pour une
planification consciencieuse, ils vous permettront de visualiser les idées et
concepts novateurs et personnalisés proposés par nos professionnels. Tous nos
clients reçoivent un dossier complet, inclus dans les coûts de
réalisation par notre entreprise. Ce dossier comprend les plans de présentation
et de plantation, une liste des matériaux suggérés, les dessins techniques et
annotations d’usage, et enfin un estimé détaillé. Ainsi, vous posséderez une
évaluation fiable et exacte des coûts rattachés à votre projet d’aménagement
paysager. Les différentes étapes conduisant à l’élaboration de ce dossier sont :
Étape 1. L’identification de vos besoins
• Une première rencontre nous permettra de connaître vos aspirations, vous goûts
et vos besoins personnels.
Étape 2. Le relevé du terrain et de la propriété
• Inventaire et cueillette de données telles que : dénivelés, végétaux et
constructions existantes, contexte environnant, etc.
Étape 3. Plan de présentation
• Remise du plan de présentation- selon les dimensions exactes- illustrant les
idées conceptuelles et comprenant, entre autres, les matériaux utilisés, les
niveaux, ainsi qu’un estimé des coûts de réalisation.
Étape 4. Plan de plantation
• Une fois le plan de présentation approuvé par le client, le plan de plantation
est préparé. Vous y trouverez représentés tous les végétaux choisis : arbres,
arbustes, conifères, vivaces, etc.
Ce plan est accompagné d’une liste détaillée où figurent les quantités exactes,
le nom scientifique des végétaux et des informations sur ceux-ci, telles que :
la couleur, les dimensions, la période de floraison, ainsi qu’une estimation des
coûts de plantation.
Les avantages d’un plan :
Posséder un plan d’aménagement paysager personnalisé, conçu avec un souci
constant de qualité par notre équipe de professionnels, vous permettra de …
• Visualiser l’apparence de votre résidence
• Connaître les coûts de manière précise
• Planifier les étapes de construction
Pour une conception de paysagement selon vos attentes.
|
NOUS JOINDRE:

 |
819.477.1224 |
FACEBOOK:

Accréditations:

R.B.Q.:
5683-0128-01
OFFRES D'EMPLOI 2018:

•
préposé/préposée à l'aménagement paysager
•
manoeuvre et aide en construction |